TipiTop Small
- Modelo funcional para proyectos de glamping
- Diseño funcional
- Uso profesional
- 2 + 1 Personas
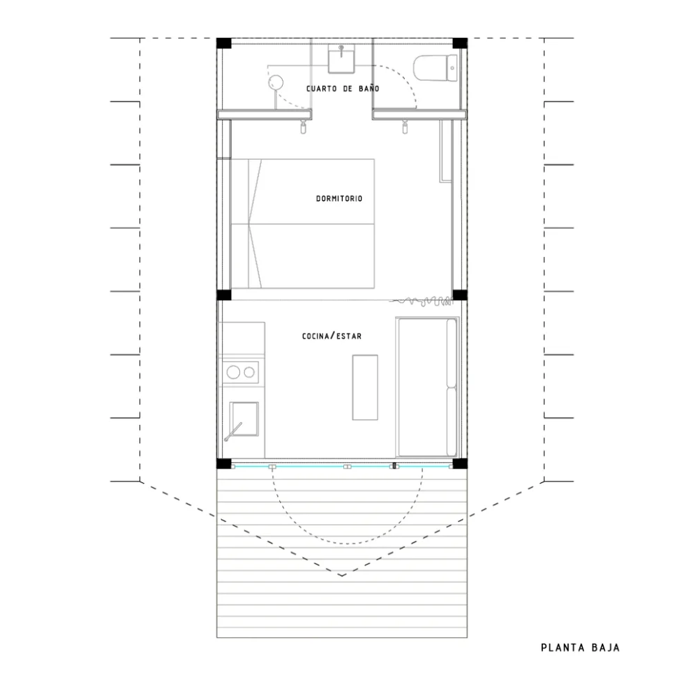
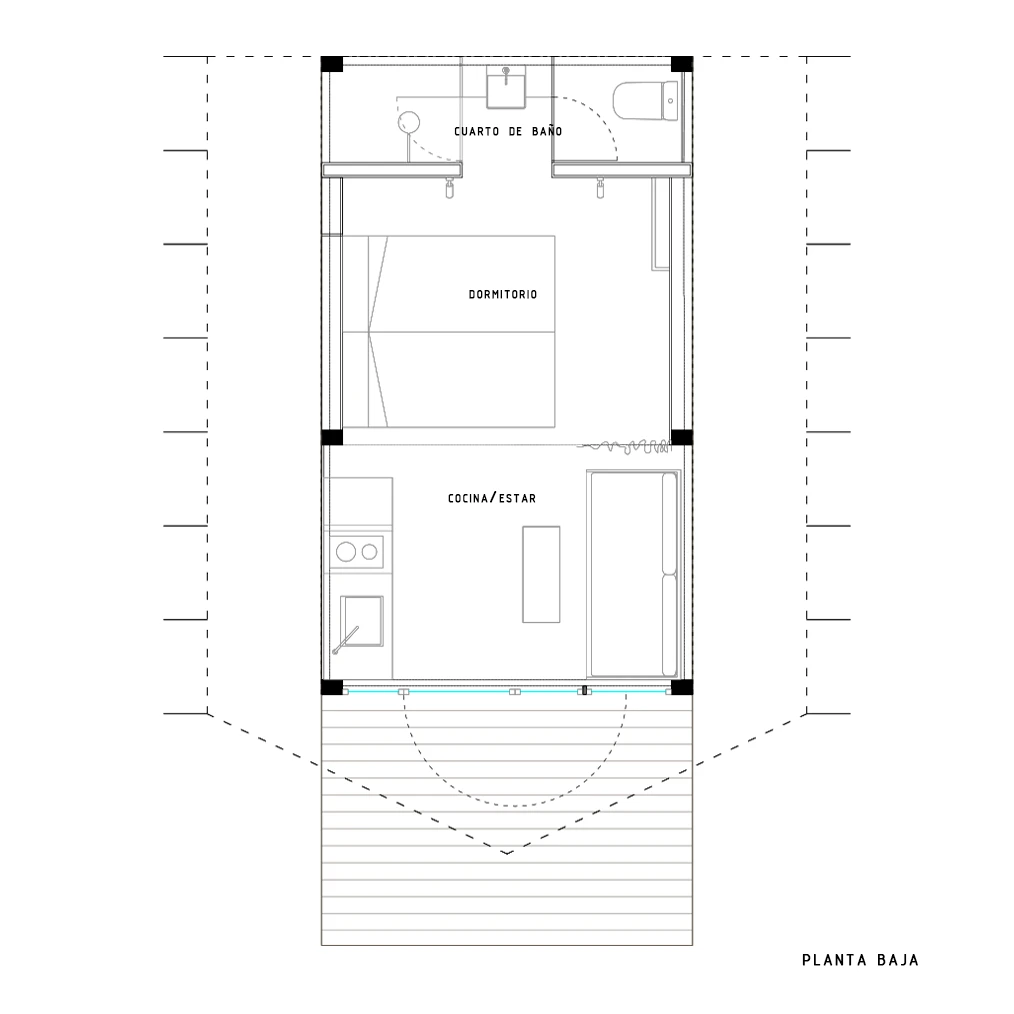
El TipiTop Small es un modelo versátil de nuestra gama, pensado para proyectos de glamping que buscan un equilibrio entre espacio, confort y funcionalidad. Ofrece mayor amplitud que el modelo Mini, siendo ideal para campings y alojamientos que desean alojar parejas o pequeñas familias sin renunciar a una experiencia cómoda y bien distribuida en plena naturaleza.
Fabricado con materiales resistentes y diseñado para un uso profesional, el TipiTop Small se integra fácilmente en entornos naturales y se adapta a distintos tipos de terreno. Su diseño permite una instalación eficiente y una distribución interior optimizada, garantizando durabilidad, confort y una experiencia de glamping cuidada en cada detalle.
- Dimensiones: 3,5 x 8,5 m totales 3,5 x 6 m interiores 3,5 x 2,5 m terraza. (30 m²)
- Espacios:
· Estar/cocina: 7,70 m²
· Baño: 3,50 m²
· Dormitorio: 9,80 m² superficie total
· Terraza: 8.75 m²
Características
- Estructura robusta diseñada para uso intensivo
- Lona de alta calidad, resistente a la intemperie
- Excelente ventilación y entrada de luz natural
- Espacio interior optimizado
- Posibilidad de personalización según proyecto
- Diseño pensado para entornos naturales
- Instalación profesional incluida
- Integración sencilla con tarimas de madera



