TipiTop Large
- Modelo amplio para proyectos de glamping
- Diseño funcional
- Uso profesional
- 2 + 1 Personas
El TipiTop Large es el modelo más amplio de nuestra gama, diseñado para proyectos de glamping que buscan ofrecer el máximo nivel de confort y espacio. Es la opción ideal para alojar familias o grupos, así como para proyectos que desean posicionarse en un segmento más premium sin renunciar a la integración con el entorno natural.
Fabricado con materiales de alta calidad y pensado para un uso profesional intensivo, el TipiTop Large garantiza durabilidad, estabilidad y una excelente habitabilidad. Su diseño permite una distribución interior amplia y versátil, así como una instalación eficiente en diferentes tipos de terreno, convirtiéndolo en una solución ideal para proyectos de glamping que buscan diferenciarse por su confort y amplitud.
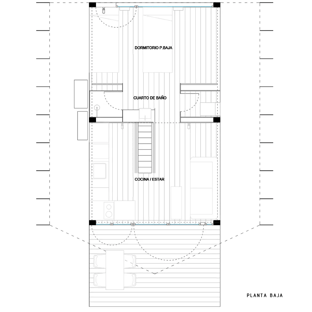
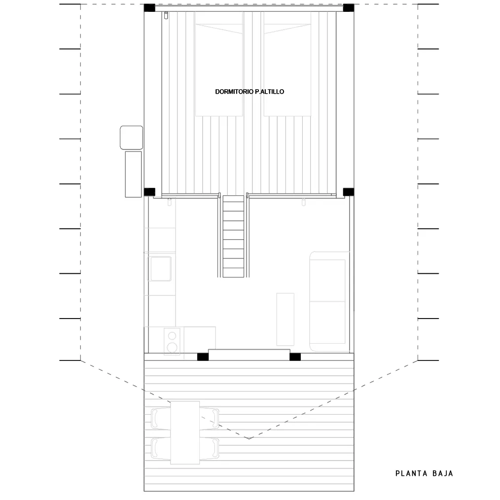
- Dimensiones: 4 x 9,3 m totales · 4 x 6,8 m interiores en planta baja, 3,30 x 3,65 m en planta altillo y 4 x 2,5 m de terraza
- Espacios:
· Estar/cocina: 12,50 m² (posibilidad de sofá cama)
· Dormitorio de planta baja : 9,48 m² (espacio para 3 camas individuales ó matrimonio + cuna ó cama supletoria y espacio de armario)
· Dormitorio del altillo: 11,90 m², dormitorio para dos personas con una configuración flexible.
· Baño: 3,20 m²
· Terraza: 10 m²
Características
- Estructura robusta diseñada para uso intensivo
- Lona de alta calidad, resistente a la intemperie
- Excelente ventilación y entrada de luz natural
- Espacio interior optimizado
- Posibilidad de personalización según proyecto
- Diseño pensado para entornos naturales
- Instalación profesional incluida
- Integración sencilla con tarimas de madera



